ЩИТ ЛИНЕЙНЫЙ


Обозначение, мПлощадь, м2Вес, кг
2,5мм
Вес, кг
3мм
Щит линейный 1,2х3,03,6151166
Щит линейный 1,15х3,03,45148160
Щит линейный 1,1х3,03,3142156
Щит линейный 1,05х3,03,15138151
Щит линейный 1,0х3,03134147
Щит линейный 0,95х3,02,85129142
Щит линейный 0,9х3,02,7125138
Щит линейный 0,85х3,02,55120132
Щит линейный 0,8х3,02,4116128
Щит линейный 0,75х3,02,25110121
Щит линейный 0,7х3,02,1105116
Щит линейный 0,65х3,01,9599109
Щит линейный 0,6х3,01,894103
Щит линейный 0,55х3,01,659099
Щит линейный 0,5х3,01,58695
Щит линейный 0,45х3,01,358189
Щит линейный 0,4х3,01,27785
Щит линейный 0,35х3,01,057279
Щит линейный 0,3х3,00,96470
Щит линейный 0,25х3,00,756167
Щит линейный 0,2х3,00,65763


ОПИСАНИЕ

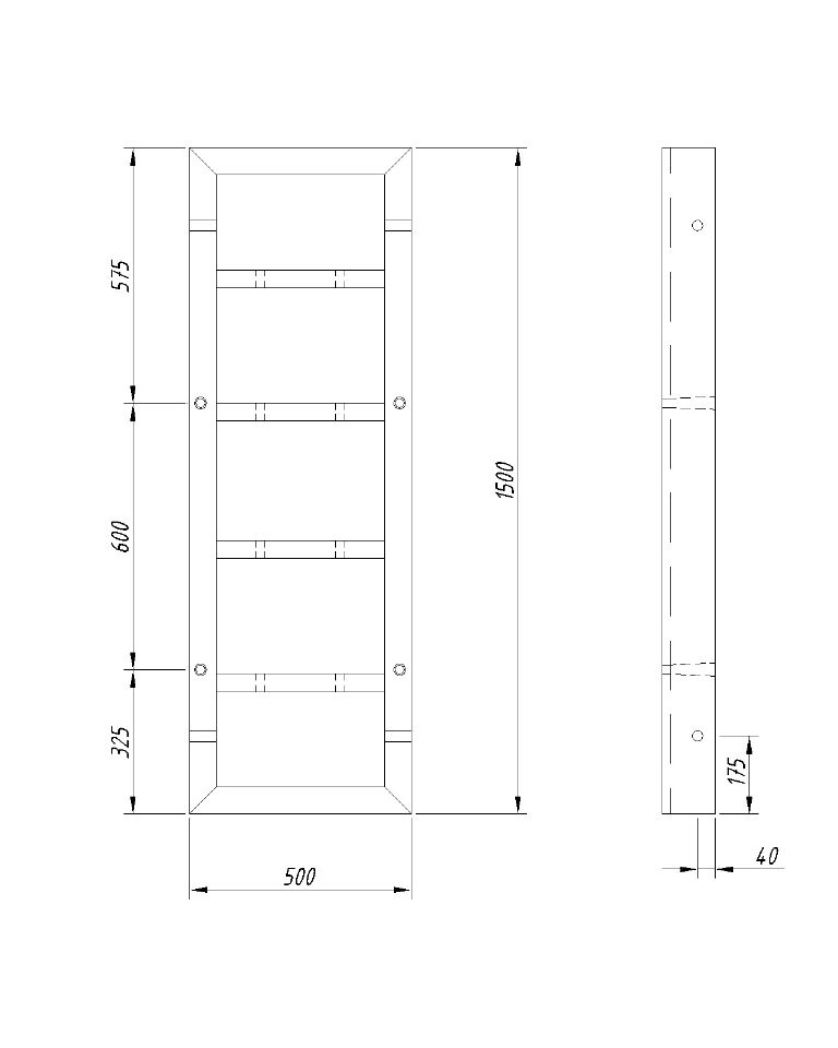
Линейный щит применяется как для опалубки прямолинейных участков, так и для формирования колонн. Щит состоит из сварного каркаса, выполненного из стального профиля толщиной 2,5мм или 3мм и палубы из ламинированной фанеры. В палубе имеются отверстия для стяжки щитов параллельно друг другу вдоль формируемой стены. Для крепления кронштейнов подмостей и (или) подкосов в ребрах рамы также имеются отверстия. Все щиты окрашиваются полимерной порошковой краской с последующим запеканием в печи. Мы производим линейные щиты различной высоты от 1,2м до 3,3м и ширины от 0,2м до 1,2м в зависимости от потребности заказчика.

ТЕХНИЧЕСКИЕ ХАРАКТЕРИСТИКИ

- весовой показатель опалубки – 45 – 73 кг м/кв;
- расчётное давление бетонной смеси – до 80 кПа (профиль 2,5мм) и до 90 кПа (профиль 3мм);
- прогиб при максимальных нагрузках – менее 1/400 пролёта перекрытия или высоты стены;
- высота формируемых стен – 3 метра с не регулируемой скоростью заливки бетона и до 6 метров с регулируемой;
- оборачиваемость стальных каркасов щитов опалубки – 350 циклов;
- средняя оборачиваемость фанеры опалубки стен и колонн – 70 циклов с каждой стороны фанеры. 

При изготовлении щитовой опалубки используется влагостойкая ламинированная фанера производства "Демидов". Толщина фанеры 18мм, толщина пленки 120мкр, сорт 1/1. Фанера крепится к металлическому каркасу щита с помощью оцинкованных саморезов 6х40. Данное крепление обладает долговечностью и облегчает процесс ремонта, поскольку саморезы можно выкрутить, перефанеровать щит и закрутить саморезы обратно.
Для фанерования опалубки используем силиконовый герметик. Герметизируем стык фанеры в 2 слоя, снизу и сверху, что обеспечивает отличную гидроизоляцию торца палубы.